間隙之家
THE INTERVAL HOUSE

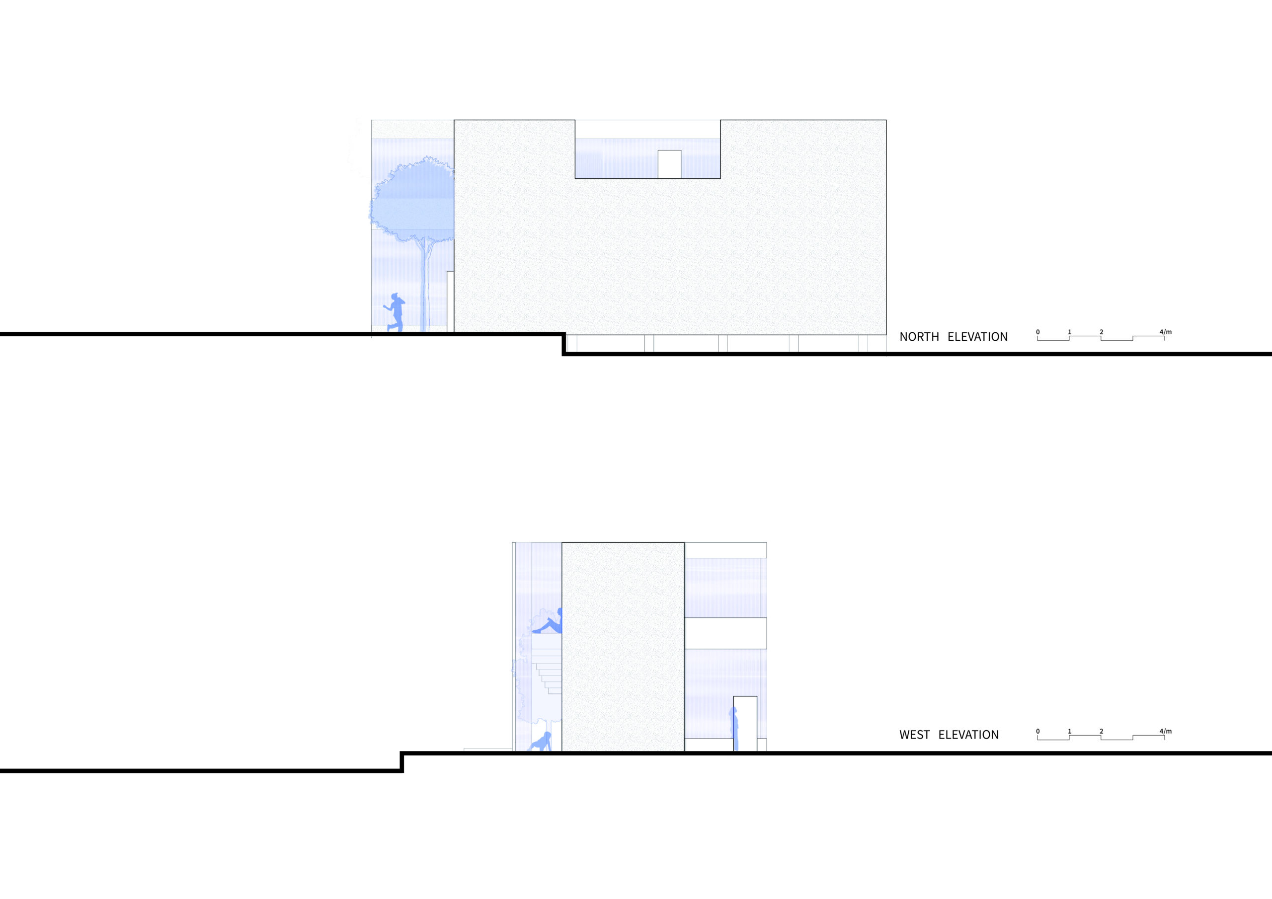
Dynamic Knowledge space : A Library live with Forest

This graduation project reflects on Chiayi and asks how architecture can embody its spirit. After five years of architectural training, I respond to the city through critique and imagination. Chiayi is shaped by close human relationships and nearby natural industries, where identity emerges not from static landmarks but from movement, ritual, and reconfiguration. Situated along the Alishan Forest Railway, the site engages cycles of planting and logging, transforming the library from a fixed building into a spatial procession—where the forest renews knowledge and the Yi-min safeguard its roots over time, allowing architecture to evolve as a living cultural infrastructure.

2022.03 – 2022.04

B.Arch Studio project

Housing,

Tainan,Tw

Hwine Lu 

160㎡

The project is structured around a cyclical system that operates through time rather than form. Based on the rotation of plantation forestry, the site is divided into four zones, each undergoing planting, growth, harvesting, and regeneration in a sixteen-year cycle. Timber is not treated as a static material but as a moving element— circulating between forest, processing, and architectural use. This circulation forms a spatial and temporal loop, where construction, decay, and replacement are continuously visible. 

An eight-meter grid organizes the entire site, functioning simultaneously as a planting matrix, structural system, and spatial framework. Within this consistent order,contrasting materials—wood, steel, and concrete—are deliberately placed alongside different programs such as forest, library, and wood industry. The grid does not eliminate contradiction; instead, it allows differences in materiality, function, and atmosphere to coexist within a shared rhythm. 

Through this system, the library becomes a mediator between forest cycles and human activity. The grid links spaces of reading, production, and growth, while the circulation of trees connects daily use with ritual moments of harvesting and renewal. What appears as contradiction—nature and industry, permanence and change—is held together by repetition, alignment, and time.

1/100 physical model 2025